9801845999

21-May-2026 22:14:20

Offcanvas

Shrestha Residence

Residential

Dec-15-2025

Client : Sabina Shrestha
Architect / Engineer : Ar. Aditya Parajuli, Ashmita Parajuli, Pasang Syangtan, Anjan Thapa,
Project Location : Bagmati Pradesh Sitapaila
Project Status : Ongoing
Materials : Dachi brick tile clad, Natural stone cladding, RCC frame structure, aluminium windows, English cornice bands and motifs, tile cladding, Marble Hookah Railings
Area : 2818 Sq.Ft

Description:

The Shrestha Residence is an ongoing residential bungalow project located in Sitapaila, Kathmandu, designed and executed by IRDA for Mrs. Sabina Shrestha and Family. Planned as a Design & Build project, the residence reflects a thoughtful blend of functionality, cultural expression, and contemporary living.

Set on a 1,680 sq. ft. (0-5-0-0) site, the bungalow is designed in the style of Contemporary Nepali Modern Architecture, where clean modern forms are enriched with subtle traditional influences. The architectural language focuses on balanced proportions, efficient spatial planning, and a strong visual identity suited to an urban residential context.

The exterior composition features a refined palette of materials, including dachi brick tile cladding, natural stone finishes, and a durable RCC frame structure. Elegant English cornice bands and motifs add character to the façade, while aluminium windows and tile cladding ensure modern performance and longevity. Marble hookah railings further elevate the architectural expression, adding a sense of luxury and craftsmanship.

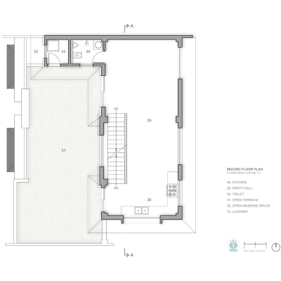
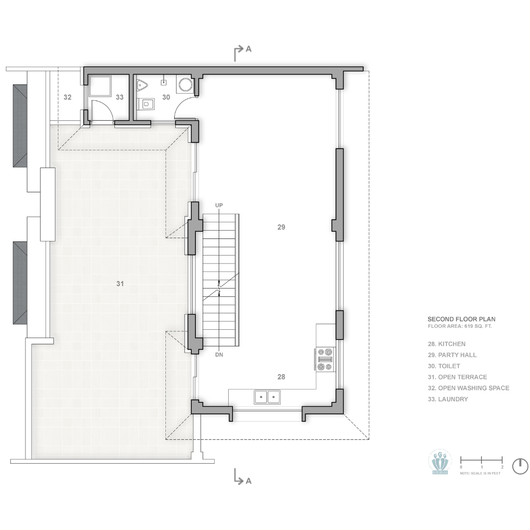
The total built-up area is distributed across multiple floors, carefully planned to maximize natural light, ventilation, and spatial comfort. Each level is designed to support a seamless flow between private and shared living spaces, ensuring both practicality and aesthetic harmony.

Currently under construction, with works initiated in December 2025, the Shrestha Residence exemplifies IRDA’s integrated approach to residential architecture, where design vision, technical precision, and execution come together to create homes that are timeless, comfortable, and contextually rooted.
 

Project gallery

Send Inquiry